Site Plan.jpg
 

shizheng luxury tower

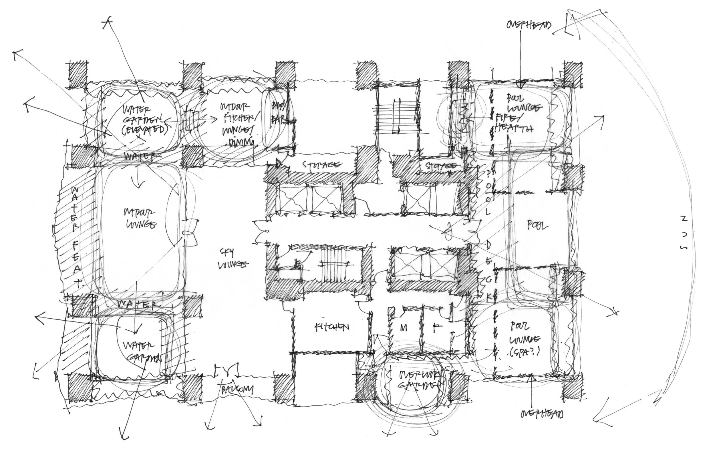
Duane Border Design is providing landscape master plan and detailed design for a new luxury residential tower in Taichung, Taiwan. Collaborating with Johnson Fain and Hirsch Bedner Interiors, Duane Border Design has created a contemporary approach to site design and material selections to enhance the elegance of the glass residential tower, including motor court, view and roof gardens, and VIP courtyards connecting the interior programs and amenities with the landscape.

Formal arrangements and layers of planting, water features, and paving create a sense of movement and carry the eye throughout the garden in order to maximize the limited site area surrounding the dense tower in the heart of the city’s premier 7th District.

Duane Border Design used a combination traditional design studies of hand sketches and renderings in addition to Lumion models to establish the character and quality of design for client review and to be used in marketing animations and sales efforts.

 
Garden+Plan.jpg
 
20191030_Spatial Diagram.jpg
BRW54137912CC64_001664_Page_1.jpg
Previous
Previous

Via Avanti

Next
Next

Lakes at Costa Mesa